Young Architects Builds House on Steep Valley Slope
On the shores of Christchurch, New Zealand stands a sturdy house on a hillside with a fairly extreme slope. Young Architects built this house with concrete construction due to the very challenging conditions of the site

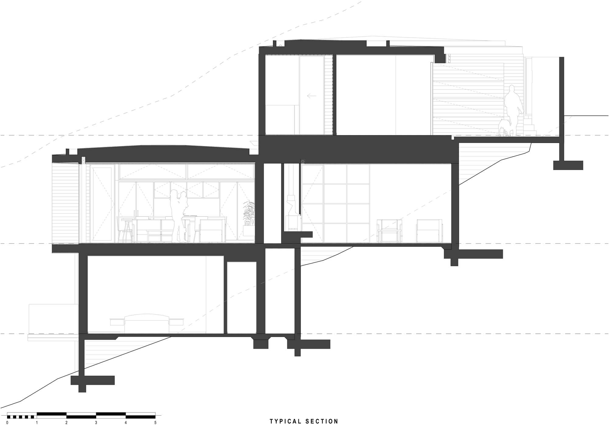
Concrete was chosen because of the construction requirements of a very geotechnically steep site. By design, the concrete is left bare and raw without finishing to express the variations in texture and color inherent in its composition. In addition, the walls still use a natural color that is sealed with a dim wall layer, while the floor uses a dark charcoal color and is polished with a glossy sheen.


The use of oak panels on the back wall of the living room is also used to create a warm impression that combines with the sea view outside the glass window. While the ceiling and side walls in the living room use a layer of cedar shiplap board. This material palette was chosen so that they can complement each other aesthetically, as well as functionally fit the purpose.


In this residence, the exposed concrete functions as a heat sink and fulfills its main structural purpose, which is to support construction located on steep land. As a finishing, large glass as a window designed without a frame presents a realistic view to the occupants.

The rooms in this house are placed according to the topography of the land which allows maximum exposure to the wide view of the living space. As for circulation, service rooms, and withdrawal rooms are positioned away from sights and light. However, a darker and more intimate room is allocated for the withdrawal room. This makes the room stand out from other places.


The game of transparency and solidity is seen from the openness and privacy that is controlled through careful consideration of the position of the glass. Meanwhile, the house itself is dominated by the afternoon sun by channeling it into the kitchen in the morning through the clerestory window and down the stairs with open treads. Lastly, the sturdy walls are carefully positioned to protect from the heat.


Authentication required
You must log in to post a comment.
Log in