Nagomi Suites | Wiyoga Nurdiansyah
Nagomi Suites is an accommodation with a series of rooms with full-service facilities located in South Jakarta. Located only 200 meters from Ayodya Park—a green open space environment, Nagomi Suites applies the concept of sustainable greenery by adopting a garden into the building. This greening concept is carried out vertically as high as 6 floors and provides a garden layer on each floor. Therefore, visitors can feel the view of the private garden in each room unit occupied.
Nagomi Suites with exposed concrete that still brings greenery
The building is enriched by natural sunlight that enters through the west-facing facade, so the light gets stronger during the day. Nagomi Suites also places a balcony on the top floor of the room as protection from the sun.
dominated by dark colors such as wood and floor colors
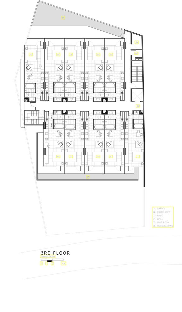
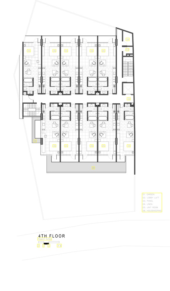
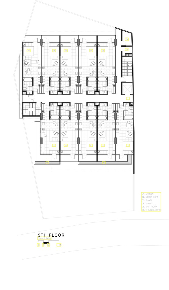
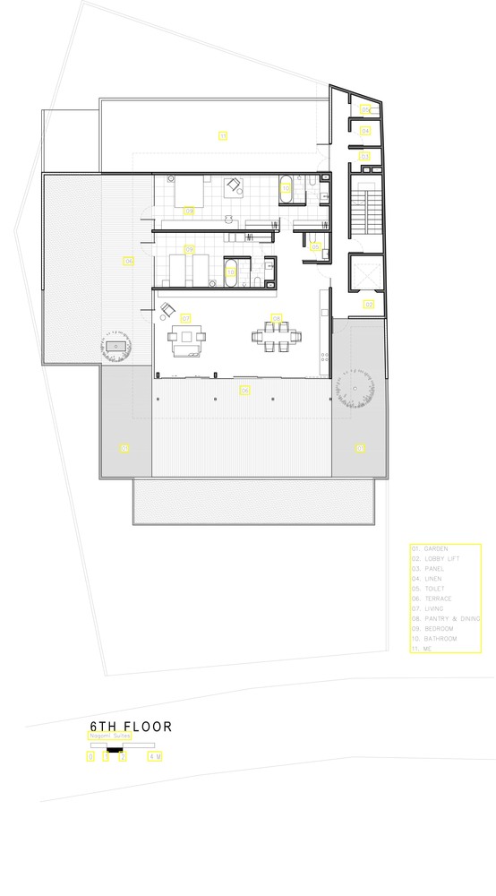
Consisting of 40 suites, each room has an area of 40.5 square meters. With this area, this room is sufficient for facilities such as a private pantry, dining room, bathroom with bathtub, and private garden. The top floor is used as a penthouse with one master bedroom, one bedroom, living room, dining room, and also a large roof terrace garden.
solid and strong room feel
Most of the building materials for Nagomi Suites are finished with exposed concrete and bengkirai wood which makes it sturdy but still looks natural. The corridors of the Nagomi Suites building take advantage of natural ventilation from ventilation blocks applied to the main and east facades of the building.
penthouse area with more complete facilities and roof terrace garden
room interior that still brings greenery
As the existing site is further under the main road, this area is used as a basement parking zone with little stockpiling work on site. The basement also serves as the building's service room. Meanwhile, the first floor of the basement functions as the main lobby, adjacent to the back office house and commercial area.

different roof garden areas on each floor

artificial lighting at night with warm yellow

basement floor plan

first-floor plan

second-floor plan

third-floor plan

fourth-floor plan

fifth-floor plan

sixth-floor plan

roof plan
Authentication required
You must log in to post a comment.
Log in