Brick Cave | H&P Architects

February 24, 2022

The city of Hanoi has undergone a rapid urbanization process, but there is one building that retains traditional elements that are adapted to today's designs. This house was designed with the philosophy of a place that is artificially similar to the natural environment'. Therefore, H&P Architects brought a house structure that resembles a cave in its concept.

Brick Cave - H&P Architectslike a house surrounded by a cave wall with brick material

The overall structure uses two layers of brick walls that meet each other at a junction, with alternating arrangements of plants and greens. Brick has long been a familiar local material and is widely used in rural areas of Vietnam with its simple manual construction method.

Brick Cave - H&P Architectsthe kitchen area and dining table that are integrated and get maximum lighting

The two layers of walls that are the main material serve as filters to remove the external aspects (sunlight from the west, dust, noise) that are less favorable and bring nature (light, rain, and wind) to the interior where it needs it. The roof is designed over the outer walls by tilting in different diagonals to create a better vantage point for the general landscape of the area. At the same time, it helps residents feel the time and weather through the shadows of the air in the inner corner of the house.

Brick Cave - H&P Architectsexterior enclosure made of brick

Brick Cave - H&P Architectsmaximize light and air circulation into the room through large openings

Brick Cave includes spaces that are interconnected with each other with random holes that gradually shift from openness/publicity to proximity/privacy and vice versa. The combination of 'close' and 'open' manages to create diverse relationships with the environment, and in doing so can help blur the boundaries between entrances and exits, houses and roads, people and nature.

Brick Cave - H&P Architectsthe bedroom is dominated by brick and wood materials

Brick Cave - H&P Architectsfamily room that looks spacious and space

Overall, this building reminds humans of the parts found in humans and nature, that they are so close and connected. Therefore, it provides an interesting and enjoyable experience for residents because they are in a wide-open space and are harmonized with the comfort of a safe residence.

Brick Cave - H&P Architectsthe natural impression is present in the house

Brick Cave - H&P Architectsmeeting the building structure with the building envelope

Brick Cave - H&P Architectsdetail of the arrangement of bricks on the building envelope

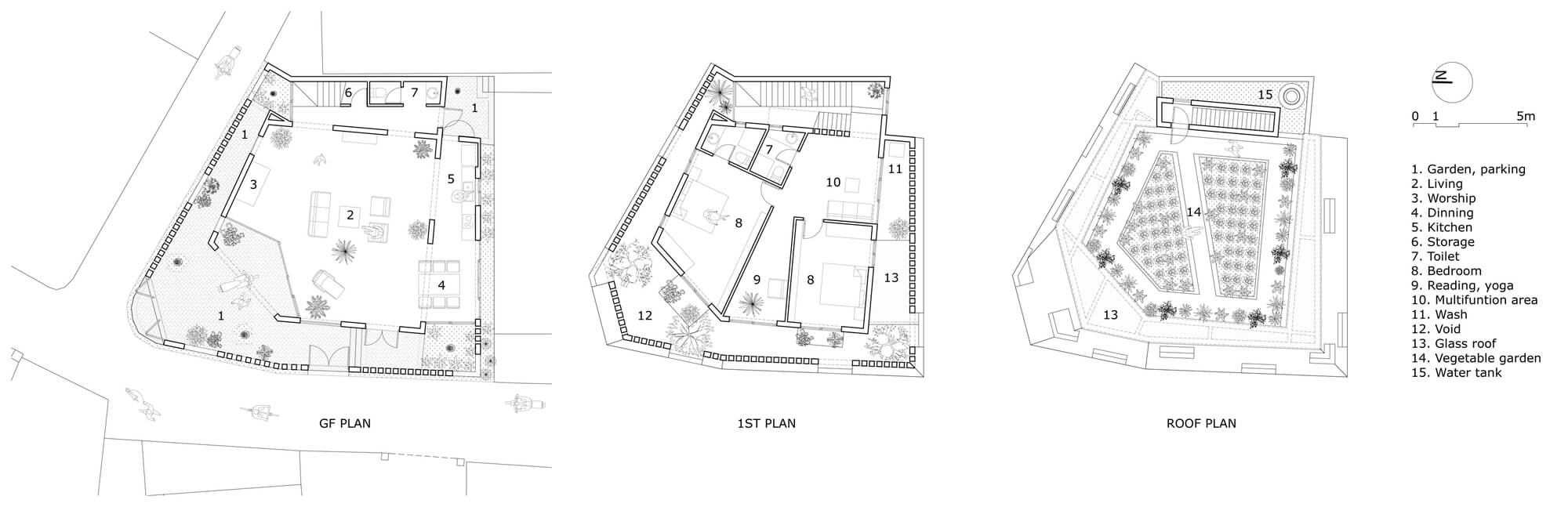
Brick Cave - H&P Architectsground floor plan, first-floor plan, and roof plan

Office Name
/
Project Location
ĐÔNG ANH, VIETNAM
/
Completion Year
Office Name
Project Location
ĐÔNG ANH, VIETNAM
Completion Year
advertise with designbit