A Simple and Eco-friendly Islamic Boarding School by Bitte Design Studio
The Tahfizh Akhwat Islamic Boarding School is a place for learning the Al Qur'an for Muslim students as well as a place to live for them. This is a dormitory specifically dedicated to female students who are deepening their knowledge of religion and the Al Qu'ran. Bitte Design Studio built the Tahfizh Akhwat Islamic Boarding School on an area of 330 square meters whose funds came from zakat, infaq, and alms.

The Tahfizh Akhwat Islamic Boarding School.
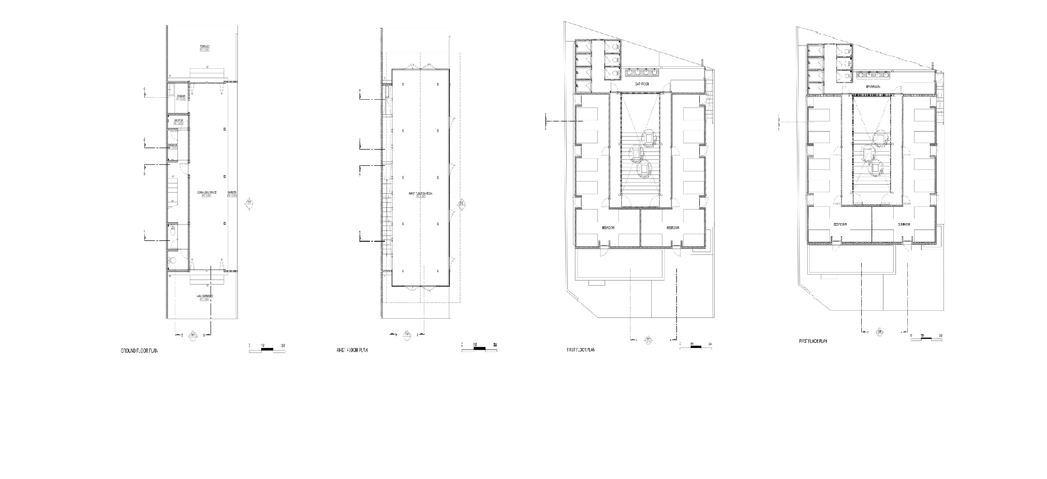
As a learning center and a place to live, the design of this dormitory is divided into two main areas that distinguish it vertically. To accommodate the needs of students and teachers, the ground floor is allocated as a public space consisting of an office, meeting room, library, study room, pantry, and dining room. While the top floor is used as a private room equipped with dormitory rooms and a service area that can accommodate 32 people.

The interior of the Tahfizh Akhwat Islamic Boarding School.
The design of the Tahfizh Islamic Boarding School tries to blend itself into its respective functions while blurring the boundaries between them. This can be seen in the public spaces that are designed as multi-functional spaces that can accommodate and accommodate all learning processes in every corner of the room. Thus, the space under the stairs, pantry, dining room, and terrace can be used as a place to study. In addition, the openness of public spaces on the ground floor also allows students and teachers to relax while waiting for learning to begin.
Bedroom.
There's a central courtyard overgrown with trees to support outdoor learning activities or as a relaxing area. This courtyard also serves as an optimal place to maintain the circulation of light and air that enters the dormitory space. This circulation can easily enter the room through the gaps in the wall. In addition to maximizing light and air gains, the use of wall materials and building structures that use raw materials and exposed materials is intended to reduce the budget due to limited costs. However, with a carefully considered design, the raw materials make the building look simple and display a unique impression.
Indoor courtyard.
An extension of Tahfizh Islamic boarding school

Outdoor courtyard.
An extension of the first Tahfizh Islamic Boarding School, this building has the same function, as a place of learning and a place to live for students. The design of this building puts forward a tropical concept where the use of materials for building structures, both interior, and exterior, is made of wood because the construction is fast and tends to be light. Wood was also chosen as the main material because this project is located in a remote area, therefore simple construction is one of the factors considered.

Hall.
The design approach taken by Bitte Design Studio is how to maximize the potential of sunlight and optimal air circulation considering that Indonesia is a tropical country. So that the outside area is turned into a calming green open space. With the approach and natural materials used, this is a commitment to today's architecture that's oriented towards the environment. Bitte Design Studio also recycles leftover raw materials to reduce wasted waste.
Material details in the hall area.
Outdoor area the Tahfizh Akhwat Islamic Boarding School.

Floor plan.
Authentication required
You must log in to post a comment.
Log in