Siro Hotel | MOUNT FUJI Architects Studio
This hotel is located in Toshima district, Tokyo, Japan. This area has become one of the tourist destinations, more precisely travelers from all over the world. Therefore, there are quite many inns along this road.
uniquely designed Siro Hotel in a narrow space
Mount Fuji Architects deliberately designed this building as unique as possible by utilizing a fairly narrow area. This hotel gives a different impression to the visitors. The studio deliberately uses the concept of 'presenting the city in a hotel' so that it is not only for overnight stays, but visitors and tourists can feel Japan in their hearts.
many inns close to hotel siro
“Usually, the lobby where visitors check-in is located a bit far from the entrance. Then you take an elevator and walk down a dimly lit corridor. Arriving at the reserved room, you have to open the door and pass through the narrow space in front of the bathroom before getting to the room where you are staying,” said Mashiro Harada, founder of Mount Fuji Architects.
each room is accessible via an open corridor
However, not with this hotel. The design of this hotel seems to take you walking down the streets of Tokyo. Visitors are presented with the atmosphere of being in every part of Tokyo City through the design of the hotel on each floor. Each step that connects each floor has a different design.
each floor is connected by stairs of different shapes
Like the stairs in hilly cities like Nagasaki and Onomichi. Stairs lead to open hallways like a 'loggia' of outdoor corridors—where visitors can feel the breeze.
the position of the stairs with the different fulcrum
open corridor connecting each room
Each room can be accessed directly from the hall like the alley roji in Tokyo. The rooms, including the engawa—access from the hallway, and the doma entrance, are both reminiscent of a traditional ryokan inn. If visitors open the shoji curtains and sliding doors, a view of the city of the Ikebukuro district can be seen stretching out below. This greatly enhances your experience of staying at Hotel Siro.
rooms that are directly adjacent to glass doors to be able to see the city view
the atmosphere from inside the hotel room

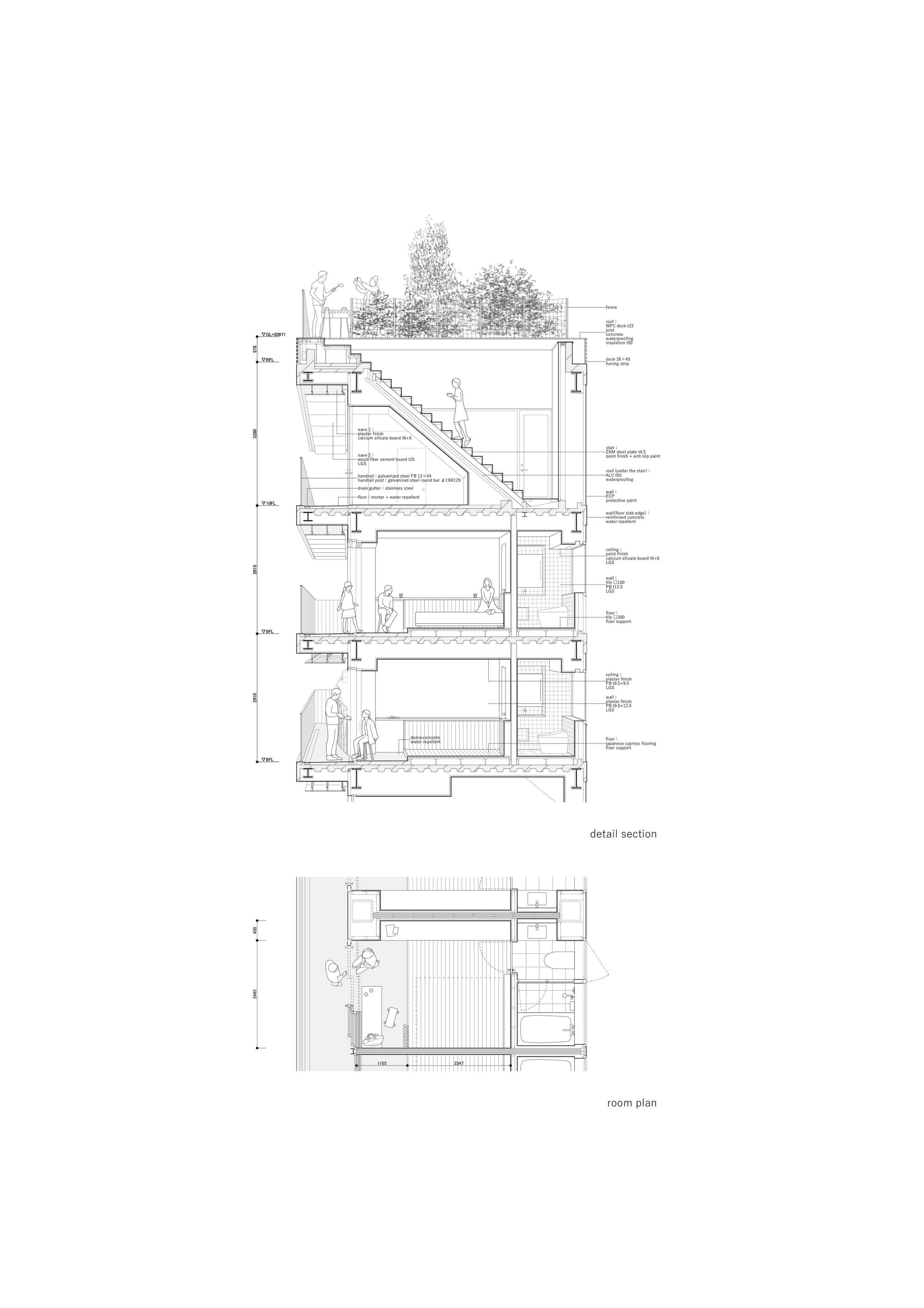
detailed building pieces and hotel room plans
north view of the building and pieces of the building
Authentication required
You must log in to post a comment.
Log in