Traditional Vietnamese House in Long An, Full of Red Bricks
Long An is a province in southern Vietnam located in the Mekong Delta region. Long An is also used as the name of a house designed by Tropical Space Co. This house is inspired by the shape of a traditional Vietnamese house which is generally triangular or trapezoidal. The uniqueness of this house can be seen from all sides of the building using red bricks, a material that is very commonly used in traditional houses here.
The design of the Long An house which inspired by a traditional Vietnamese house.
Long An house facade is full of red bricks.
If you pay close attention, the Long An House design is inspired by the traditional Vietnamese house structure which is displayed through three separate rooms and a sloping roof. Although attached to the traditional approach, the architect still uses a modern and strong architectural language to adapt to the site conditions and the characteristics of the homeowner.
Bedroom on the upstairs.
The traditional Vietnamese style of the house that stretches from front to back can create sustainable and functional spaces. This house's filled with openings that are maximized and used as ventilation and circulation of air and light. At the same time, the ventilation also functions as a separation of the roof into two parts, one of them has a courtyard equipped with a corridor to connect the roofs. This method is used to create open courtyards and large walls. The great wall is a wall made of bricks arranged to form pores so that they can bring wind into the house.
View from the courtyard.
The rooms in the house are given a limit that predicts the acquisition of light with different intensities and darkness. In addition, the layout of the room is also designed by utilizing the local wind direction. The kitchen area and other functional spaces are located on the north side and are integrated with the house, this makes it possible to accommodate residents and visiting guests. Like a traditional Vietnamese house, which has a space with a purpose and purpose devoted to gathering and cooking traditional food.

The living area of the Long An house.

The connection of ground floor and upstairs.
The mezzanine is used for two bedrooms, a relaxing area, and a reading room. In addition, there is also a long corridor that connects all the items in the house through two stairs at both ends. This mezzanine is designed to create a continuous space between the functional areas inside and outside the house so that the whole family can play freely throughout the house without being limited by walls.

View of the corridor on the first floor.

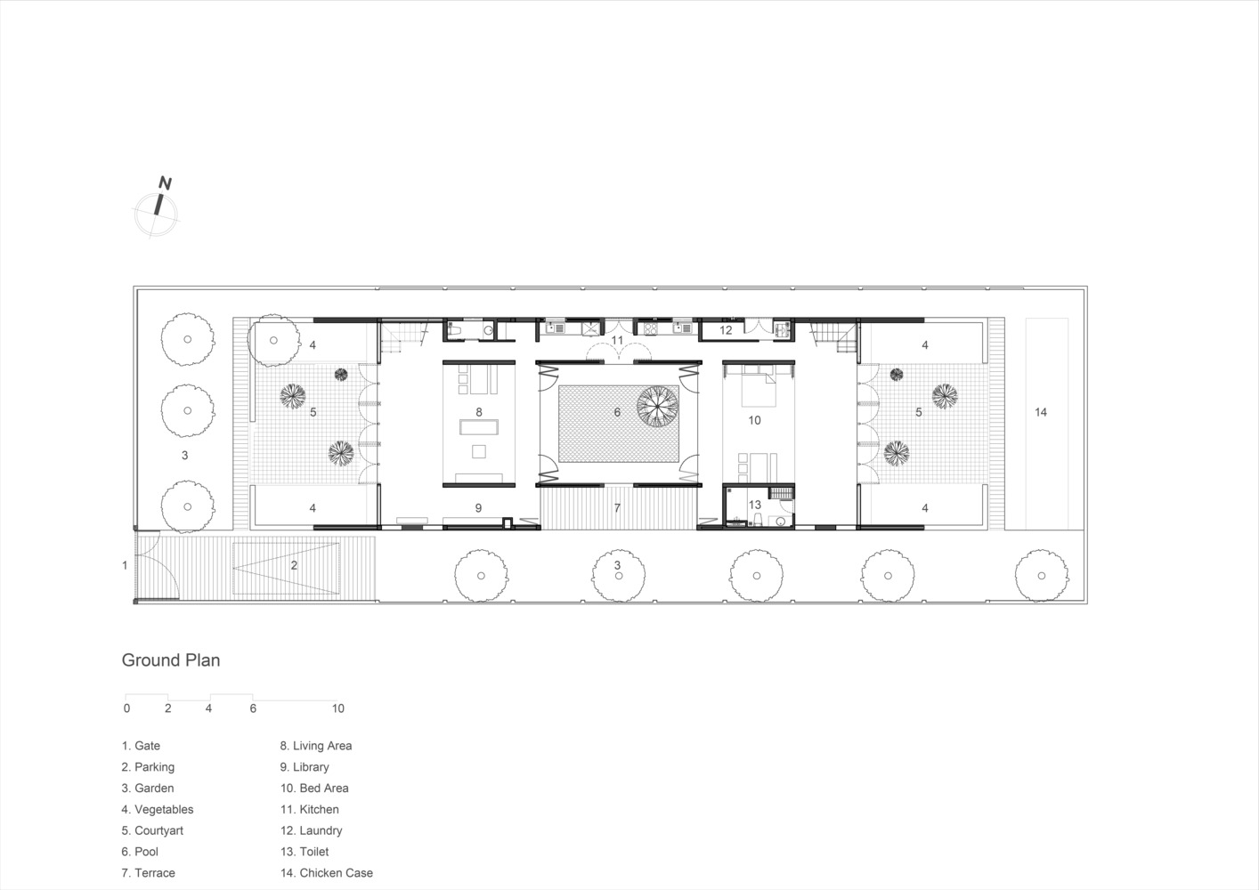
Ground floor plan.

First-floor plan.
Authentication required
You must log in to post a comment.
Log in